Create Your First Project
Start adding your projects to your portfolio. Click on "Manage Projects" to get started
EARLY YUYEN
Year : 2024
Area : 75 Sq.m
Location : Bangkok, Thailand
Circular Strategies Development : Natchai Suwannapruk / Kaytita Chaisuksiri
Photographer : Panoramic studio
Furniture Design : AThing
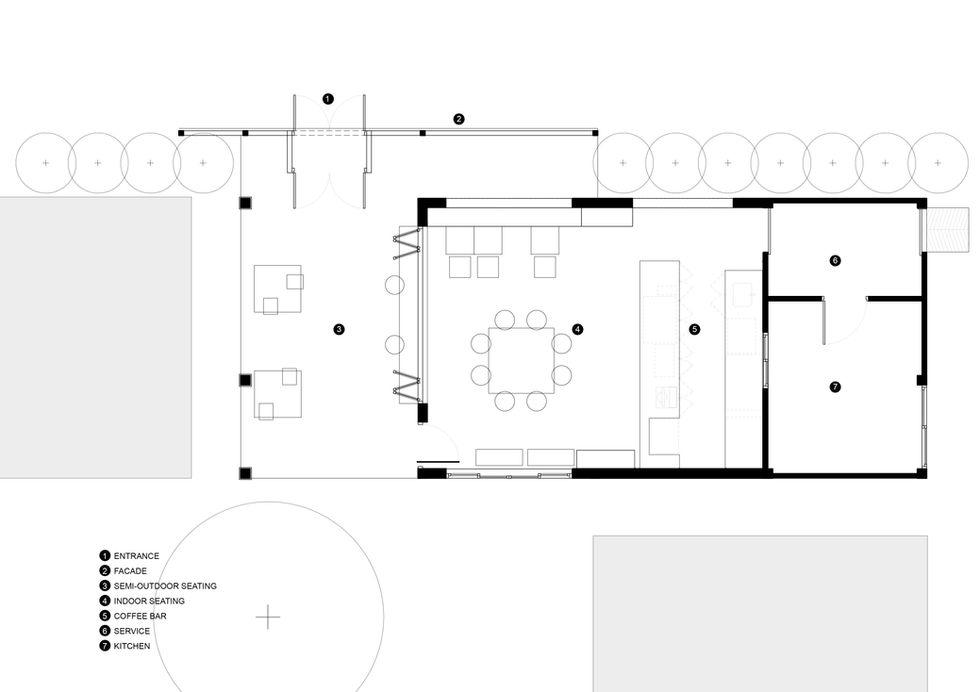
Two years after its launch as a community cafe in Sammakorn, Early BKK expands with a second branch at My Paws Backyard Dog Park in the quiet Soi Yuyen, away from the bustling Pradimanutham street, and outskirt area of Bangkok. Committed to its values of operating with environmental awareness, Early Yuyen aims to provide a new communal space for families and pet lovers,
The project began with the question: “How far can circular strategies be implemented in a new cafe?”
Building on the successes and lessons from the first location, Early BKK continues its collaboration with space+craft, an interior architectural design studio based in Bangkok, and adopts a more holistic design approach for Early Yuyen. A workshop was held in the early stage to establish a design framework focused on the circular economy. Guided by the Ellen MacArthur Foundation's “Butterfly Diagram”, the design process embraced the 4Rs: Reduce, Reuse, Refurbish, and Recycle, with an emphasis on Design for Disassembly to ensure the materials' long-term reusability.
The "Reduce" principle aimed to preserve existing materials to minimize raw material production. From the initial site visit, the focus was on retaining usable building components. With the goal to give a major facelift to the worn-out location, the priority between aesthetics and preservation was negotiated.
Formerly a staff canteen, the site is a semi-furnished single storey building which comes equipped with restaurant furniture. A decision was made to maintain the structural components while salvaging furniture for reuse in the new cafe. Surfaces were deconstructed and sorted, with aluminum profiles sold for recycling and part of the floor tiles saved for future use in the design.
Located at the entrance of the Paw’s dog park, the cafe's design extends to the dog park's gate, incorporating reclaimed windows and door frames arranged in an interlocking pattern and given a second life as a literal threshold to welcome the guests to Early Yuyen.
"Yuyen" or "Living Comfortably” when directly translated from the Thai language is reflected in the design of the cafe interior space. The airy interior space benefits from shade cast by tall trees, offering a semi-outdoor experience when temperatures permit. As part of the reuse strategy, the operable window and the fixed window facing the exterior were salvaged from a reclaimed warehouse and incorporated as design elements. The large operable window is designed as a key feature of the cafe’s facade, not only that it provides natural ventilation to the interior space, but it serves as a frame which highlights and draws attention to the cafe's interior.
The coffee bar takes center stage in the cafe and features decorative elements from repurposed glass bottles and broken glass shards incorporated into terrazzo countertops, continuing Early’s commitment to raise awareness in waste reduction. Another reference to the original Early’’s cafe is reflected through the use of Reboard cladding, a partition material made solely of recycled milk cartons compacted with high pressure. They were utilized as stand-alone partition walls and as modular waffle ceilings. These were installed with fasteners for easy disassembly. Ecobrick is another fully recycled product featured at Early Yuyen. Made from fully recycled shredded plastic, the Ecobricks are featured on the cafe's exterior wall, celebrating the use of recycled materials.
To honor the existing elements which were removed, several elements from the process were salvedge and reintroduced as a design element. Reclaimed roof tiles from nearby buildings were incorporated into the counter bar, while outdated floor tiles were repurposed as terrazzo
The floor's white and brown texture is complemented by the grainy texture from shredded milk cartons of the Reboard on the wall cladding and the modular waffle structured ceiling. The earth tone palette gives the cafe a warm and homey vibe which resonates with the wooden window frames and furniture.
To conclude, Early Yuyen is a direct answer to the initial questions: though not yet fully circular, we are taking an “early” step in pushing boundaries to explore and incorporate circular strategies in practice. This initiative sets an example of how collaboration and holistic approach can drive meaningful progress toward sustainable development.















































































